170 000 ₽/м²
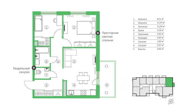
Продаётся студия в строящемся доме (Дом 3), срок сдачи: IV-кв. 2026, общей площадью 28 кв.м., на 19 этаже. В жилом комплексе "Компас" вы можете выбрать будущее жилье, исходя из своего образа жизни, возможностей и собственных представлений об идеальной квартире. "Компас" это пространство, созданное для вашего комфорта: современные планировки, где каждый уголок олицетворяет ваш стиль жизни. Дома в ЖК "Компас" возводятся по монолитной технологии с утеплением наружных стен и облицовкой металлокассетами. Дома в ЖК "Компас" возводятся по монолитной технологии с качественным утеплением наружных стен и облицовкой металлокассетами. Отопление и снабжение горячей водой обеспечиваются благодаря установленной на кровле газовой котельной. На первых этажах домов располагаются офисные помещения с панорамными окнами. В домах имеются крытый паркинг и кладовые. На придомовых территориях проектом предусмотрены открытый паркинг и детская площадка. Все квартиры комфорт-класса от строительной компании NOVA передаются жильцам с подготовкой под чистовую отделку. Строителями проведены работы по отделке стен и потолка. Стены покрыты ровным слоем штукатурки, вам нужно лишь пройти грунтовкой и можно клеить обои. Потолок выровнен штукатурными смесями и готов к покраске. В ванных комнатах выполнена гидроизоляция. Для пола заливаем цементно-песчаную стяжку, чтобы создать ровную поверхность. Используем скрытую в полу горизонтальную разводку отопления, трубы спрятаны в пол и не портят внешний вид помещения. Подробнее с отделкой вы можете ознакомится в нашем блоке. Также вы можете приобрести квартиру с отделкой "под ключ" в двух вариантах: базовый и комфорт. На отделку "под ключ" действует гарантия на проделанные работы 1 год. Также вы можете приобрести квартиру с отделкой "под ключ" в двух вариантах: базовый и комфорт. На отделку "под ключ" действует гарантия на проделанные работы 1 год. При подготовке под чистовую отделку в квартире на входе стальная усиленная дверь с шумоизоляцией и качественной фурнитурой. Окна с двойным стеклопакетом. На балконе также выполнено остекление. Используем скрытую в полу горизонтальную разводку отопления, трубы спрятаны в пол и не портят внешний вид помещения. Благодаря такой системе, тепло распределяется равномерно по всему помещению. Холл выполнен по индивидуальному дизайн-проекту. Поразите своих гостей еще на этапе подхода к квартире. Уютное лобби место, где вы можете обсудить насущные вопросы с соседями, подождать такси или встретить курьера. Высокие и прозрачные входные группы, понятная навигация в холле и на этажах. Удобные мягкие пуфики.






























































