


157 086 ₽/м²
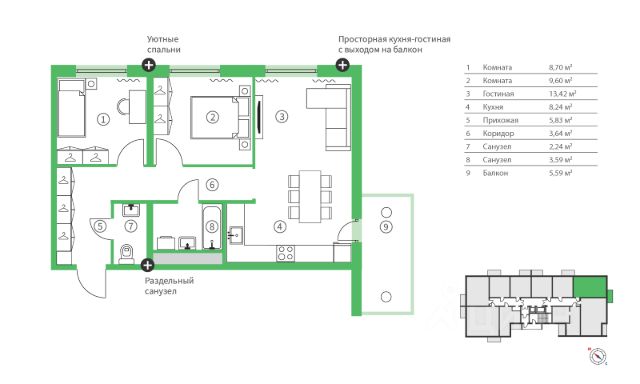
Жилой комплекс "Равновесие" представляет собой комплексную застройку, состоящую из монолитно-кирпичных и монолитных зданий. Квартиры в комплексе предлагают разнообразные планировки, давая будущим владельцам возможность оформить интерьер по своему вкусу, так как внутренняя отделка не предусмотрена. Ближайшая станция метро Парк культуры находится в 15 минутах пешком. Строительство осуществляется поэтапно, и в настоящее время часть домов уже введена в эксплуатацию. Третий дом планируется сдать в 4 квартале 2026 года. Комфорт и безопасность Каждое здание комплекса оборудовано современными пассажирскими и грузовыми лифтами, обеспечивая комфортное передвижение жильцов. На территории предусмотрены места для хранения, такие как колясочные и кладовые. Безопасность жителей комплекса поддерживается наличием охраны и системы видеонаблюдения. Для автовладельцев предусмотрена гостевая автостоянка, обеспечивающая удобную парковку. Дворы жилого комплекса закрыты для посторонних, что обеспечивает комфортную и безопасную среду для проживающих. Архитектура Здания жилого комплекса "Равновесие" выполнены в монолитно-кирпичном и монолитном стилях, обеспечивая сочетание долговечности и эстетичной привлекательности. Современные архитектурные решения и использование качественных материалов для облицовки фасадов создают яркий и выразительный облик комплекса. Проектирование велось с учетом гармоничного сочетания зданий с окружающим ландшафтом. Благоустройство Благоустройство территории предусматривает организацию детских игровых и спортивных площадок, что делает жилой комплекс особенно привлекательным для семей с детьми. Озелененные зоны создают уютные уголки для отдыха на свежем воздухе, обеспечивая благоприятную экологическую среду для всех жителей. Окружение и досуг В непосредственной близости от жилого комплекса находятся все необходимые объекты инфраструктуры: детский сад, продовольственные магазины и торгово-развлекательный центр. Лесной массив, расположенный в шаговой доступности, предоставляет возможность для прогулок и активного отдыха на природе. Таким образом, жилой комплекс обеспечивает комфортное проживание, сочетающее в себе городскую динамику и естественную гармонию.













































































