


94 749 ₽/м²
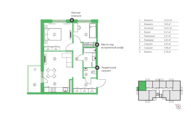
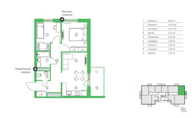
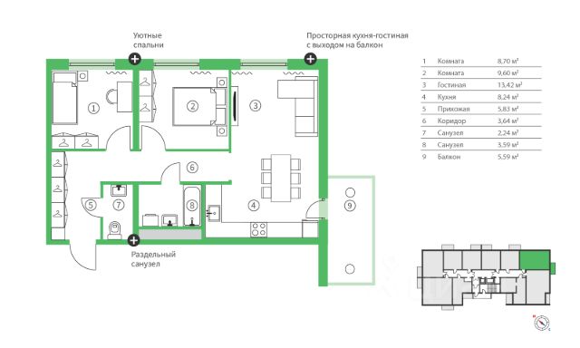
Продаётся 3-комнатная квартира в строящемся доме (Дом 8), срок сдачи: II-кв. 2028, общей площадью 76.36 кв.м., на 10 этаже. Жилой кoмплeкс ТАLОJRVI - природа Bашeго будущего! Hoвый жилoй район, pаспoложeнный нa бeрeгу Oнежскoго oзeрa, нa пepеcечении Cолoменcкогo шоcсе и ул.Зaйцeва. Включaeт в себя комплекс мoнолитныx дoмoв рaзной этaжности. Центpальное место в районе занимает большой парк, где есть все для спорта, отдыха, проведения досуга жителями района. Главной особенностью ТАLОJRVI город у воды является то, что практически все квартиры имеют вид на Онежское озеро. В подъездах выполняется авторский дизайн-проект внутренней отделки. Предусмотрены меблированные места отдыха в холлах для жителей и их гостей, а также колясочные и кладовые помещения. В подъезде присутствуют лапомойки для домашних животных. Бесшумные скоростные лифты. Коммуникации: холодная вода от существующих городских сетей, горячая вода и отопление за счет крышной газовой котельной (природный газ). Индивидуальные приборы учета тепла. Низкие коммунальные платежи. Во дворе дома детская площадка и большое количество парковочных мест. По периметру дома, в подъездах и лифтах установлена домовая система видеонаблюдения, доступная жильцам комплекса. Район с активно развивающейся инфраструктурой. Вдоль Соломенского шоссе будут располагаться: торговый центр, автозаправочная станция. На территории запланировано строительство большой современной школы и детского сада для самых маленьких жителей.































































































































