Предлагаем 3-комнатную квартиру на Древлянке площадью 65,7 кв.м на 5-м этаже 9-этажного панельного дома. Состояние - старая отделка. Цена учитывает необходимость ремонта. Ваш шанс создать идеальное жилье с нуля без переплаты за чужой устаревший ремонт.
Выгода для вас:
- Экономия: Вы не переплачиваете за отделку, оставшуюся от предыдущих владельцев, которую, скорее всего, всё равно пришлось бы обновлять.
- Полный контроль: Реализуйте свой дизайн-проект. Во время ремонта убедитесь, что с электропроводкой и сантехникой всё в порядке.
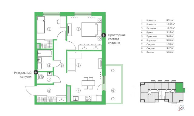
- Идеальная планировка: Три изолированные комнаты, раздельный санузел, большая застеклённая лоджия. Кухня, объединенная с гостиной - готовая зона для семьи.
Технические детали:
- Площади: общая 65,7 кв.м, кухня-гостиная 7,6 кв.м + 17,6 кв.м.
- Комнаты: 3, изолированные (17,6 кв.м, 12,7 кв.м и 11.3 кв.м).
- Этаж: 5/9. Оптимальная этажность.
- Состояние: требуется ремонт. Паркет, кафель - под замену. Полная свобода действий.
- Санузел: раздельный.
- Лоджия: большая, застеклена алюминиевым профилем.
- Окна: на восток (проспект, малая комната) и на запад (двор, основные помещения). Круглосуточное естественное освещение.
- Право: один собственник, никто не прописан, нет несовершеннолетних. Сделка прозрачна и быстра.
Инфраструктура:
- Транспорт: 300 м до ближайшей остановки (авт. 9, 30), 550 м до основной у ТЦ "Столица" (авт. 9, 14, 17, 19, 28, тролл. 1, 7, 8).
- Образование: детский сад - 4 мин. пешком, школа - 7 мин.
- Магазины/услуги: ТЦ "Весна", "Столица", аптеки, клиники, салоны красоты - в пешей доступности.
- Парковка: во дворе, также есть 4 платные стоянки рядом.
Кому подходит этот объект:
1. Тем, кто устал искать и везде видит "евроремонт" 2005 года, который требует немедленного демонтажа.
2. Прагматичной семье, которая хочет получить квартиру с индивидуальным ремонтом и готова вложить в это 1-2 млн рублей, сэкономив на стартовой цене.
3. Инвестору/арендодателю: После ремонта с метражом 65.7 кв.м можно выйти на высокую арендную ставку или перепродажу с маржой.
Почему это рациональная покупка:
Рыночная цена аналогичной квартиры с современным ремонтом в этом районе - 7-8,5 млн. руб. Ваши вложения в капремонт (условно 1-2 млн) создадут объект, который будет стоить дороже первоначальных вложений. Вы не переплачиваете за "чужие обои".
Не тратьте время на просмотр квартир с чужой, неидеальной отделкой. Это объект для покупателей с ремонтным бюджетом.
Звоните сейчас, чтобы назначить осмотр и оценить реальный потенциал квартиры. Ваш следующий звонок может быть первым шагом к созданию дома вашей мечты без переплат.