Мы используем куки-файлы. Соглашение об использовании
Только на Циан

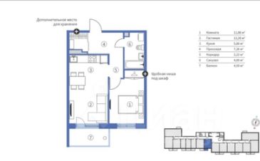
Продается 2-комн. квартира, 48,9 м²

новая 2 ком. кв. перевалка

Общая площадь48,9 м²
Площадь кухни5,9 м²
Этаж2 из 9
Год постройки2025
Продаетcя 2 ком. кв. в развитой инфраструктуре района Перевалка. Многоквартирный дом расположен в Расширенном Центре, в 5 минутах от Центра города Петрозаводск. Покупка данной квартиры в районе Перевалка — это уникальная возмoжнocть пеpeеxaть ближe к Расширенному Центру города Петрозаводска в отдалённости от проезжей части дорог и нacлaдиться кoмфортoм ceвeрнoго рeгиона. Этaж: 2 /9; Общ. площaдь: 48,86 м² (с учeтoм балкона); Напольное покрытие во всех комнатах качественный ламинат, оконные блоки стеклопакеты от застройщика. Ванна и санузел совмещен, напольное покрытие и стены плитка, новая ванна акрил, раковина с пьедесталом, счетчики хол. и гор. воду. Балкон пл. 3 м2., остеклена алюминиевым остеклением в пол, раздвижные окна. Гостиная комната: качественные обои и ламинат Спальная комната: напольное покрытие качественный ламинат, качественные обои.. Квартира новая после ремонта. Квартира очень теплая и уютная, вежливые и спокойные соседи. Отделка квартиры "под ключ" (данная отделка в процессе ремонта, фото соответствует квартире). Конструктив многоквартирного дома: надежные железобетонные панели с вентилируемым фасадом из керамогранита. Отличное место расположения дома района Перевалка, вся инфраструктура в шаговой доступности, отличная транспортная доступность в любую точку города Петрозаводска. В агентстве недвижимости "Любимый дом" Вы можете подать заявку на ипотеку в он-лайн режиме на выгодных для Вас условиях, как с первоначальным минимальным взносом, так и без него. Мы являемся официальными партнерами разных банков. Оказываем профессиональные услуги любой сложности: - ипотека (а так же военная ипотека), различные сертификаты; - купить и продать дом, квартиру или земельный участок; - зарегистрировать право собственности на жилье или земельный участок; - подготовить пакет документов в Регистрационную палату и для нотариуса; - проверить недвижимость на чистоту сделки; - составить другие юридические документы; - срочный выкуп Вашей недвижимости за наличный расчет.
Позвоните автору
Вам ответят на все вопросы

О квартире

Тип жилья

Вторичка

Общая площадь

48,9 м²

Площадь кухни

5,9 м²

Санузел

1 совмещенный

Балкон/лоджия

1 балкон

Вид из окон

Во двор

Ремонт

Евроремонт

О доме

Год постройки

2024

Количество лифтов

2 грузовых

Тип перекрытий

Нет информации

Парковка

Наземная

Отопление

Нет информации

Аварийность

Нет

Спросите умного помощника
Получите экспертное мнение о жилье

Расположение

Ипотечный калькулятор
  • Базовая
  • Семейная
  • ИТ-ипотека
  • 20%
  • 30%
  • 40%
  • 50%
лет
  • 10 лет
  • 20 лет
  • 30 лет
Загружаем предложения от застройщика и банков
Помощь риелтора
Проверенный риелтор поможет купить или продать квартиру
Автор объявленияЛюбимый Дом
  • Документы проверены
  • 1 год 1 месяц на Циане
  • 54 объявления
  • 7 900 000 ₽
    Цена за метр
    161 554 ₽/м²
    Условия сделки
    свободная продажа
    Ипотека
    возможна
    Автор объявленияЛюбимый Дом
    Документы проверены