Мы используем куки-файлы. Соглашение об использовании
Только на Циан
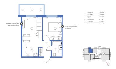
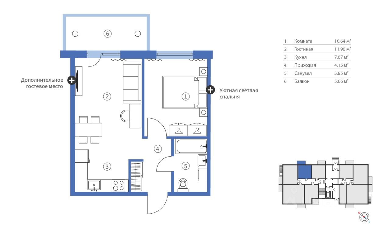
Общая площадь43,27 м²
Этаж2 из 9
Год сдачи2027
ДомНе сдан
ОтделкаБез отделки
Продаётся 2-комнатная квартира в строящемся доме (5.4), срок сдачи: I-кв. 2027, общей площадью 43.27 кв.м., на 2 этаже. Новый жилой комплекс "Сампо" от застройщика "Стройинвест КСМ" органично сочетает городской комфорт и очарование жизни загородом. Здесь каждый сможет найти то, что ему необходимо: Для семей с детьми - детский сад, встроенный в один из домов ЖК и новая школа, построенная на территории микрорайона; Для молодежи - доступность центра и разнообразие функциональных планировок; Для старшего поколения - близость магазинов, тишина и покой. Внутренняя инфраструктура ЖК "Сампо" гармонично сочетает близость к природе и самодостаточность. На территории комплекса разместятся: Торгово-развлекательный центр с продовольственным магазином; Точки с товарами и услугами первой необходимости; Также стоит отметить, что дома комплекса оборудованы собственными автономными котельными, что позволит жителям самостоятельно определять сроки отопительного сезона и экономить на коммунальных платежах.

О квартире

Тип жилья

Новостройка

Общая площадь

43,27 м²

Высота потолков

2,68 м

Отделка

Без отделки

О доме

Количество лифтов

1 грузовой

Тип дома

Панельный

Понравилась квартира — узнайте о ней больше

Застройщик ответит на все вопросы

Варианты отделки в ЖК

  • Предчистовая
  • Без отделки

О ЖК «Сампо»

  • Сдача комплекса
    Сдача в 2026—2027, есть сданные
  • Застройщик
    Стройинвест КСМ
  • Класс
    Комфорт
  • Тип дома
    Панельный
  • Парковка
    Гостевая
  • Отделка
    Без отделки, предчистовая
  • Тип комплекса
    Жилой комплекс
Похоже на то, что вы ищете?

Особенности жилого комплекса

  • Парки

  • Архитектура

Подробнее о жилом комплексе

Акции в ЖК «Сампо»

Узнайте про персональные условия и дополнительные скидки при покупке квартиры у застройщика

Материнский капитал

Ипотечный калькулятор
  • Базовая
  • Семейная
  • ИТ-ипотека
  • 20%
  • 30%
  • 40%
  • 50%
лет
  • 10 лет
  • 20 лет
  • 30 лет
Загружаем предложения от застройщика и банков

Расположение

Ещё квартиры в жилом комплексе

138 квартир в продаже · Сдача в 2026—2027, есть сданные
ЗастройщикСтройинвест КСМ
Год основания: 2004
Строится: 10 домов в 6 ЖК
5 149 000 ₽
Цена за метр
118 997 ₽/м²
Условия сделки
долевое участие (214-ФЗ)