Мы используем куки-файлы. Соглашение об использовании

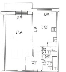
Продается 1-комн. квартира, 38 м²

Общая площадь38 м²
Жилая площадь19 м²
Площадь кухни11 м²
Этаж5 из 5
Год постройки2017
Продаётся уютная однокомнатная квартира площадью 38 квадратных метров на пятом этаже пятиэтажного монолитного дома, построенного в 2017 году. Дом расположен в тихом районе города Петрозаводска, по адресу проезд Художников Авдышевых, 3. Квартира имеет продуманную планировку: жилая площадь составляет 19 квадратных метров, а кухня 11 квадратных метров, что позволяет комфортно разместиться и создать удобное пространство для готовки и приёма пищи. Благодаря евроремонту, выполненному с использованием качественных материалов, интерьер выглядит свежим и современным. Наличие раздельного санузла добавляет дополнительное удобство для жильцов. Из окон открывается прекрасный вид на двор, лес и парк, создающий атмосферу уединения и спокойствия. Для жителей предусмотрены детская и спортивная площадки во дворе, где можно активно проводить время на свежем воздухе. Также рядом находятся детский сад, торговый центр, парк и фитнес-центр, что делает расположение особенно привлекательным для семей с детьми и тех, кто ценит активный образ жизни. Безопасность жильцов обеспечивается наличием домофона. Парковка предоставляется во дворе, что является несомненным преимуществом для автовладельцев. Это отличный вариант как для личного проживания, так и для инвестиций. Приглашаем вас ознакомиться с квартирой и убедиться во всех её преимуществах лично!
Позвоните автору
Вам ответят на все вопросы

О квартире

Тип жилья

Вторичка

Общая площадь

38 м²

Жилая площадь

19 м²

Площадь кухни

11 м²

Высота потолков

2,7 м

Санузел

1 раздельный

Балкон/лоджия

1 балкон

Ремонт

Евроремонт

О доме

Год постройки

2017

Строительная серия

Индивидуальный проект

Тип дома

Монолитный

Тип перекрытий

Железобетонные

Подъезды

2

Парковка

Наземная

Отопление

Автономная котельная

Аварийность

Нет

Газоснабжение

Центральное

Спросите умного помощника
Получите экспертное мнение о жилье

Расположение

Ипотечный калькулятор
  • Базовая
  • Семейная
  • ИТ-ипотека
  • 20%
  • 30%
  • 40%
  • 50%
лет
  • 10 лет
  • 20 лет
  • 30 лет
Загружаем предложения от застройщика и банков
Помощь риелтора
Проверенный риелтор поможет купить или продать квартиру
5 200 000 ₽
Цена за метр
136 842 ₽/м²
Условия сделки
альтернатива
Ипотека
возможна
Агентство недвижимости
Суперагент