Мы используем куки-файлы. Соглашение об использовании

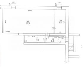
Продается склад, 81,9 м²

Площадь81,9 м²
Этаж-1 из 5
Выс. потолков2.4 м.
Арт. 132966662 Предлагаем вашему вниманию подвальное помещение 81,9 м² по адресу: Петрозаводск, ул. Кемская, 15. Расположено в кирпичном доме 1982 года постройки, вход - с торца здания, отдельный и удобный для коммерции. Внутри два помещения (55 м² и 9,4 м²), санузел с мокрой точкой (9,1 м²), входной коридор 6,5 м². Коммуникации подведены. Основное помещение просторное, правильной прямоугольной формы - удобно для зонирования. Санузел требует косметического ремонта, но полностью оборудован базовой сантехникой. Второстепенное помещение (9,4 м²) может использоваться как склад, техническая или подсобная зона. Входная группа имеет удобную лестничную конструкцию и возможность установки двери / тамбура на ваш вкус. Отдельный вход расположен на торцевой стороне здания, что облегчает разгрузку, доступ посетителей и автономность использования без взаимодействия с жильцами дома. Низкая стоимость владения и гибкость перепланировки - идеально под любые задачи. Наличие мокрой точки - позволяет использовать помещение под широкий спектр услуг. Кирпичный дом - хорошая шумо-и теплоизоляция. Помещение отлично подойдёт под: склад или хозблок; мастерскую; помещения для производства и сборки; интернет-магазин с пунктом выдачи; небольшой сервисный центр; студию / творческое пространство; комнату персонала при бизнесе поблизости. Район Ключевая - спокойный, жилой, но при этом с развитой инфраструктурой. Рядом находятся магазины, аптеки, остановки общественного транспорта и другие городские службы. Подъезд удобный, вокруг много парковочных мест и свободного пространства Один собственник, без обременений, быстрый выход на сделку! Звоните и записывайтесь на просмотр.
lock

Войдите или зарегистрируйтесь
для просмотра информации

Просматривайте условия сделки и всю информацию об объекте
Сохраняйте фильтры в поиске и не вводите заново
Доступ к избранному с любого устройства
Неограниченное добавление в избранное
Позвоните автору
Вам ответят на все вопросы
Остались вопросы по объявлению?
Позвоните владельцу объявления и уточните необходимую информацию.
  • Инфраструктура
  • Похожие рядом
  • Общая площадь81,9 м²
Центральное отопление
Помощь надёжных риелторов
Риелтор партнёр Циан поможет купить или продать любую недвижимость
1 300 000 ₽
17 405 $
14 842
Цена за метр
15 874 ₽
Налог
НДС включен: 234 426 ₽
Агентство недвижимости
Документы проверены
На Циан
2 года
Объектов в работе
23