Мы используем куки-файлы. Соглашение об использовании
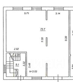
Помещение свободного назначения, 73,7 м²

Продается помещение свободного назначения, 73,7 м²

Площадь73,7 м²
Этаж1 из 10
ПомещениеСвободно
Готовое бизнес-решение в современном доме! Продается нежилое помещение 73.7 м² с свободного назначения с отдельным входом на 1-м этаже. Ул. Виданская, д. 17Б (дом 2017 ода постройки) Идеальный старт для вашего бизнеса без лишних хлопот и вложений! Готовое к работе помещение свободного назначения со всеми коммуникациями. • Общая площадь: 73,7 кв.м. • Этаж: 1-й, отдельный вход • Высота потолков: 3.0 м. • Коммуникации: Центральное отопление, ХВС, ГВС, эл. энергия. • Статус: Нежилое помещение. • Собственность: Частная. Продажа от юридического лица. Без обременений. Ключевые преимущества: Выгодное расположение: Отдельный вход с улицы, удобная парковка для клиентов и сотрудников. Вашу компанию будет легко найти. Готовность к работе: Всё уже проведено: отопление, водоснабжение, санузел, пожарно-охранная сигнализация, электросчетчик, счетчик на тепло, система принудительной вентиляции. Осталось только внести свою концепцию! Яркое и безопасное пространство: Большие окна на две стороны обеспечивают обилие естественного света. Электрические роллеты на окнах и двери надежно защитят ваше имущество. Уникальная планировка: Три светлых смежных зала с возможностью гибкого зонирования по вашему усмотрению. Легко разделить на несколько изолированных кабинетов или оставить open-space. Отличное состояние: Чистое, с современной отделкой. Можно начинать работу сразу после покупки, а обновить интерьер под свой стиль — по желанию. Есть возможность установить рекламную вывеску на фасаде здания. Помещение идеально подойдет для: Сфера услуг: Офис, сервисный центр, банковское отделение, аптека, салон красоты, студия фитнеса или йоги. • Образование и творчество: Частная школа, детский развивающий центр, художественная или музыкальная студия. • Производство и ремесло: Мастерская (ремонт, IT-сборка, пошив), небольшое производство, лаборатория. • Торговля: Магазин формата у дома, шоу-рум, пункт выдачи заказов. • И многое другое! Возможность установки рекламной вывески привлечет дополнительных клиентов. ________________________________________ Не упустите шанс запустить или расширить свой бизнес в перспективном и готовом к работе помещении!
lock

Войдите или зарегистрируйтесь
для просмотра информации

Просматривайте условия сделки и всю информацию об объекте
Сохраняйте фильтры в поиске и не вводите заново
Доступ к избранному с любого устройства
Неограниченное добавление в избранное
Позвоните автору
Вам ответят на все вопросы
Остались вопросы по объявлению?
Позвоните владельцу объявления и уточните необходимую информацию.
  • Инфраструктура
  • Похожие рядом
  • Общая площадь73,7 м²
Приточная вентиляция
Местное кондиционирование
Центральное отопление
Сигнализация
Помощь надёжных риелторов
Риелтор партнёр Циан поможет купить или продать любую недвижимость
6 500 000 ₽
85 467 $
72 524
Цена за метр
88 196 ₽
Налог
НДС включен: 1 172 131 ₽
Агентство недвижимости
Суперагент