


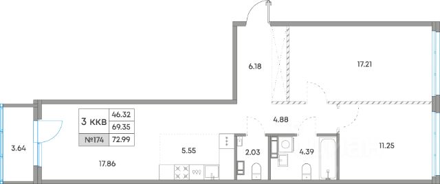
183 413 ₽/м²
Жилой комплекс "Речка-2" - это уникальный оазис в самом центре города: чистый воздух, речная прохлада, удаленность от городских дорог и близость к самым интересным местам Петрозаводска. Концепция уникального для города проекта заключается в его неповторимом стиле и месторасположении: дом строится прямо на берегу реки Лососинка, напротив центрального парка города, стадиона Юность, площади Кирова. Преимущества дома: - низкая этажность 5 этажей; - 4 отдельных дома-секции по 29-30 квартир; - эргономичные планировки; - технологии "умного" дома; - камеры видеонаблюдения на территории, в лифтах и холлах; - современные бесшумные лифты; - автономное отопление природным газом (крышная газовая котельная); - кладовые; - современная красивая архитектура: комбинированные фасады (кирпич, керамогранит, штукатурка), разноцветные акценты в виде дизайнерских французских балконов; - панорамное остекление балконов; - расширенные оконные проемы, окна в пол; - обилие детских и спортивных площадок, музеев, театров, клубов и ресторанов в непосредственной близости от дома; - ландшафтный дизайн двора по индивидуальному проекту; - благоустроенная набережная реки Лососинка для прогулок; - прекрасные виды из окон на площадь Кирова,стадион Юность, парк с рекой Лососинка. Рассрочка от застройщика до 2 лет. Жилой комплекс сдан! Торопитесь! Уникальных квартир осталось немного!







































































































